物件概要
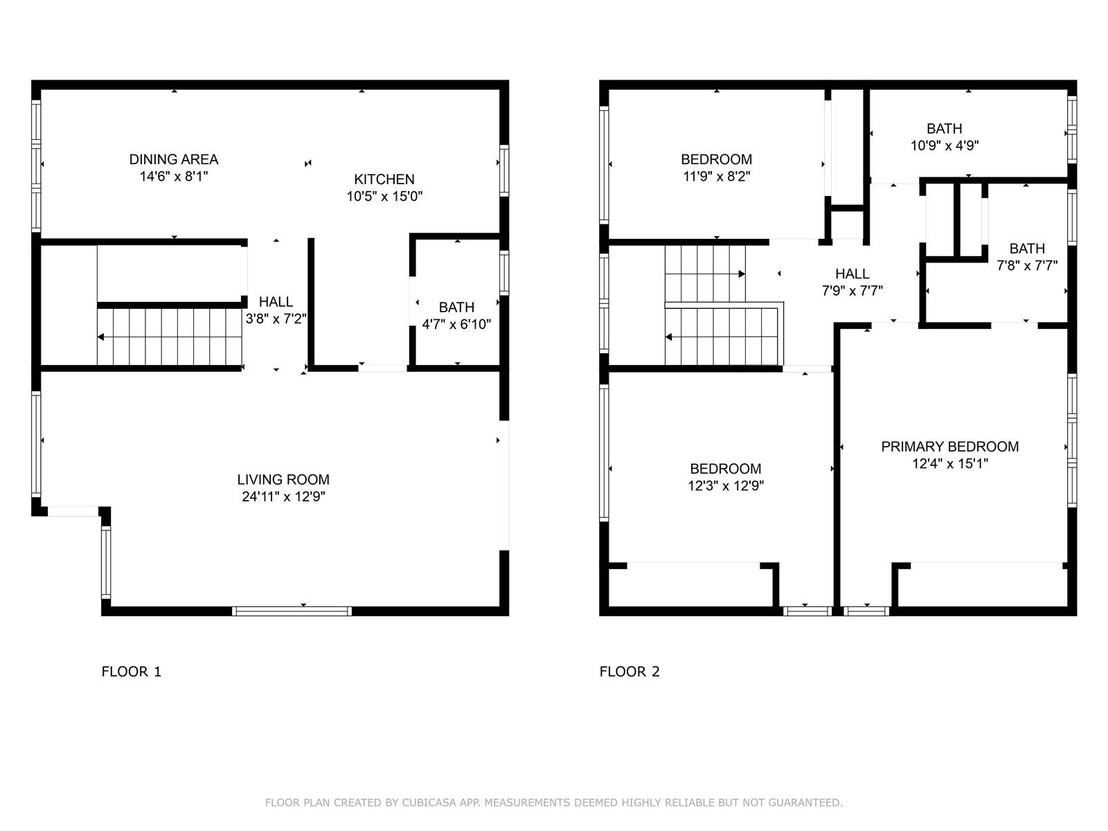
再び市場に登場!売主の責任ではなく、買主が融資を完了できなかったため。アイエアの中心部にひっそりと佇む、めったに空室にならない明るく風通しの良い、魅力的な3ベッドルーム、2.5バスルームのスプリットレベル・タウンハウスに足を踏み入れてください。トロピカーナ・ビレッジの広々とした角部屋は、1,361平方フィートの室内空間と、ドアのすぐ外に2台分の駐車スペースがあり、まるで一戸建て住宅のような雰囲気です。大きな窓から自然光がたっぷりと差し込み、開放的な間取りのため穏やかな風が吹き抜け、一年中涼しく快適な空間を保ちます。キッチン、ダイニング、リビングエリアはシームレスに繋がっており、ゲストとの交流もスムーズです。プライベートラナイからは緑豊かな景色と静かなゴルフコースの景色が広がり、朝のコーヒータイムや週末のバーベキューに最適です。パールリッジ・ショッピングセンター、高速道路、学校、レストラン、病院からわずか数分の距離にある、手入れの行き届いたペットフレンドリーなコミュニティの静かな環境をお楽しみください。
※自動翻訳のため表現が適切でない場合がございます。
(原文)
Back on the Market! Buyer was unable to complete financing—no fault of the seller.
Step inside this rarely available bright, airy, and inviting 3-bedroom, 2.5-bath split-level townhome tucked away in the heart of Aiea. This spacious corner unit at Tropicana Village feels like a single-family home with 1,361 sq ft of interior space and two side-by-side parking stalls right outside your door.
Large windows fill the home with natural light, while gentle cross breezes flow through the open-concept layout, keeping the space cool and comfortable year-round. The kitchen, dining, and living areas connect seamlessly for easy entertaining, and your private lanai opens to lush greenery and peaceful golf course views, perfect for morning coffee or weekend BBQs.
Enjoy the calm surroundings of this well-maintained, pet-friendly community just minutes from Pearlridge Shopping Center, freeway access, schools, restaurants, and hospitals.


