物件概要
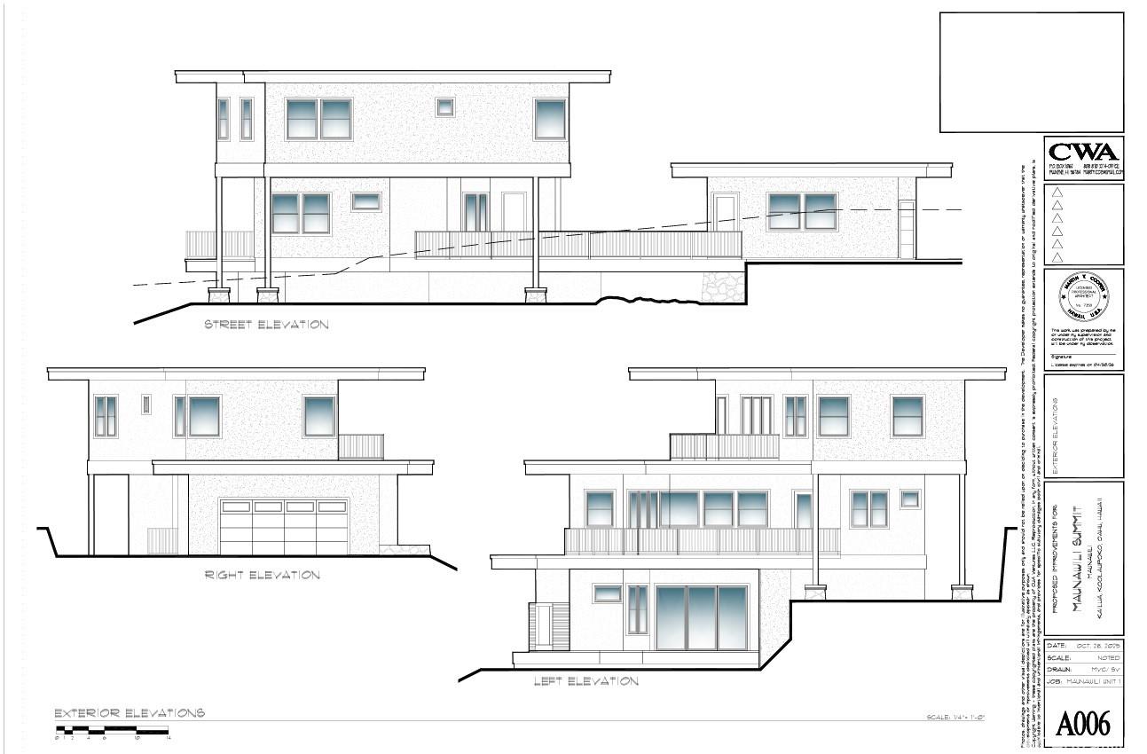
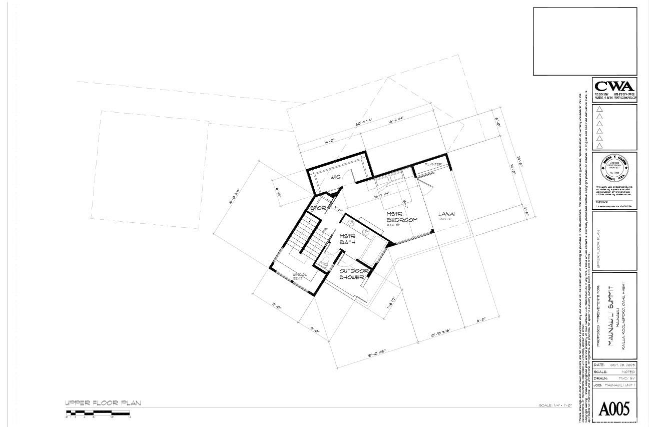
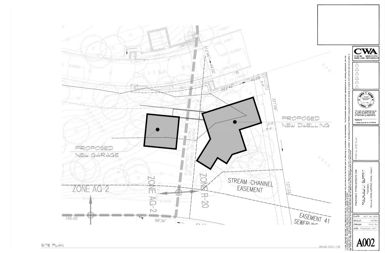
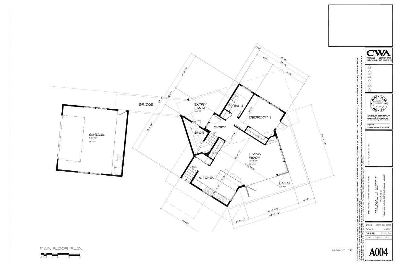
オーナーによる資金調達も検討中。楽園のような物件です。カイルアのマウナウィリ・サミットというプライベートコミュニティにある、広大な敷地面積。息を呑むような海、オロマナ山、ゴルフコース、そしてコオラウの絶景。夜には、星空と月明かりを堪能できます。マウナウィリ・サミット開発で唯一残された区画です。他の区画は既に完売しています。今すぐお申し込みください!プロジェクトの山側に位置し、近隣住民のいない静かで落ち着いた環境です。ロパカ・ウェイのプライベートゲートの奥に位置しています。ビーチやホノルルのダウンタウンへも車ですぐの距離です。ゼネコンとの相談も可能です。混合用途地域です。サンプル住宅の建築図面は写真をご覧ください。
※自動翻訳のため表現が適切でない場合がございます。
(原文)
Owner financing considered. Paradise found. Estate-sized lot in private community of Maunawili Summit in Kailua. Stunning Ocean, Olomana Mountain, Golf Course, and Koolau views. Mesmerizing stargazing & moon viewing at night. The only remaining Lot available in the Maunawili Summit Development. All other lots have been taken. Act now! Tranquil & quiet, with no neighbors, mountainside of the project. Located behind a private gated entry on Lopaka Way. Centrally located with short drive to beaches and downtown Honolulu. A general contractor available to consult with. Mixed zoned lot. See photos for architectural schematics for a sample home.


