物件概要
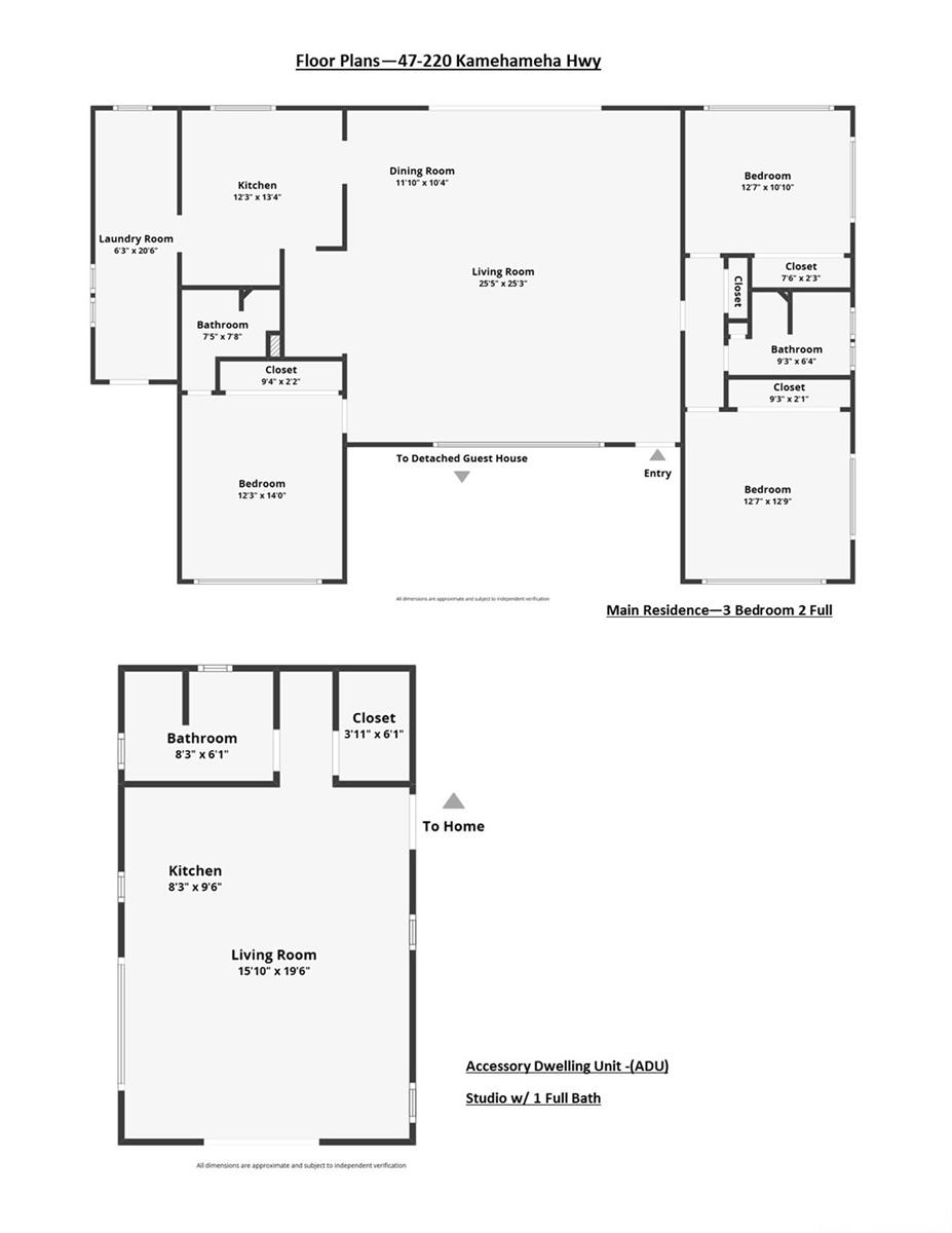
オアフ島ウィンドワードコーストのカネオヘ湾オーシャンサイドライフへようこそ!この魅力的な一戸建て住宅は、3ベッドルーム、2バスルームを備えたメインハウスに加え、法的に認められたスタジオタイプの付属住宅(ADU)があり、メインハウスとは完全に独立したプライベートエントランス、簡易キッチン、ランドリー、バスルーム、カーポートを備え、大家族、ゲスト、または賃貸収入を得るのに最適です。海岸線からすぐの広々とした敷地に建つこの住宅は、屋根付きのベランダ、成熟したトロピカルな景観、十分な駐車スペースなど、アイランドライフのエッセンスを体現しています。メインハウスは、自然光が差し込むオープンコンセプトのリビングエリア、オリジナルの堅木張りの床、オリジナルのステンレス製カウンターを備えたクラシックなキッチン、広々としたベッドルーム、2台分のガレージ(上階のメインハウスまでエレベーター付き)を備えています。地元のお店、学校、ビーチに近い便利な立地で、ヘエイア・ケア・ボートハーバー、カネオヘ、カイルア、ホノルルへのアクセスも良好です。常住用の住居、海辺の別荘、または賃貸物件として利用できる物件をお探しの場合でも、47-220 Kamehameha Highway はウィンドワード側では珍しい物件です。
※自動翻訳のため表現が適切でない場合がございます。
(原文)
Welcome to Kaneohe Bay oceanside living on Oahu’s Windward Coast! This charming single-family residence offers a flexible floor plan with a 3 bedrooms and 2 bath in the main home plus a legally permitted studio Accessory Dwelling Unit (ADU) with its own private & completely separate entrance from the main home with kitchenette, laundry, bath and carport—perfect for extended family, guests, or rental income. Set on a generous lot just down the street from the shoreline, this home captures the essence of island living with covered lanais, mature tropical landscaping, and ample parking. The main residence features an open-concept living area with natural light, original hardwood floors throughout, classic kitchen with original stainless steel counters, spacious bedrooms, 2 car garage with elevator/lift serving the upper primary home. Conveniently located near local shops, schools, and beaches, with easy access to He'eia Kea Boat Harbor, Kaneohe, Kailua, and Honolulu. Whether you’re looking for a full-time residence, a coastal retreat, or a property with built-in rental potential, 47-220 Kamehameha Highway is a rare find on the Windward side.


