物件概要
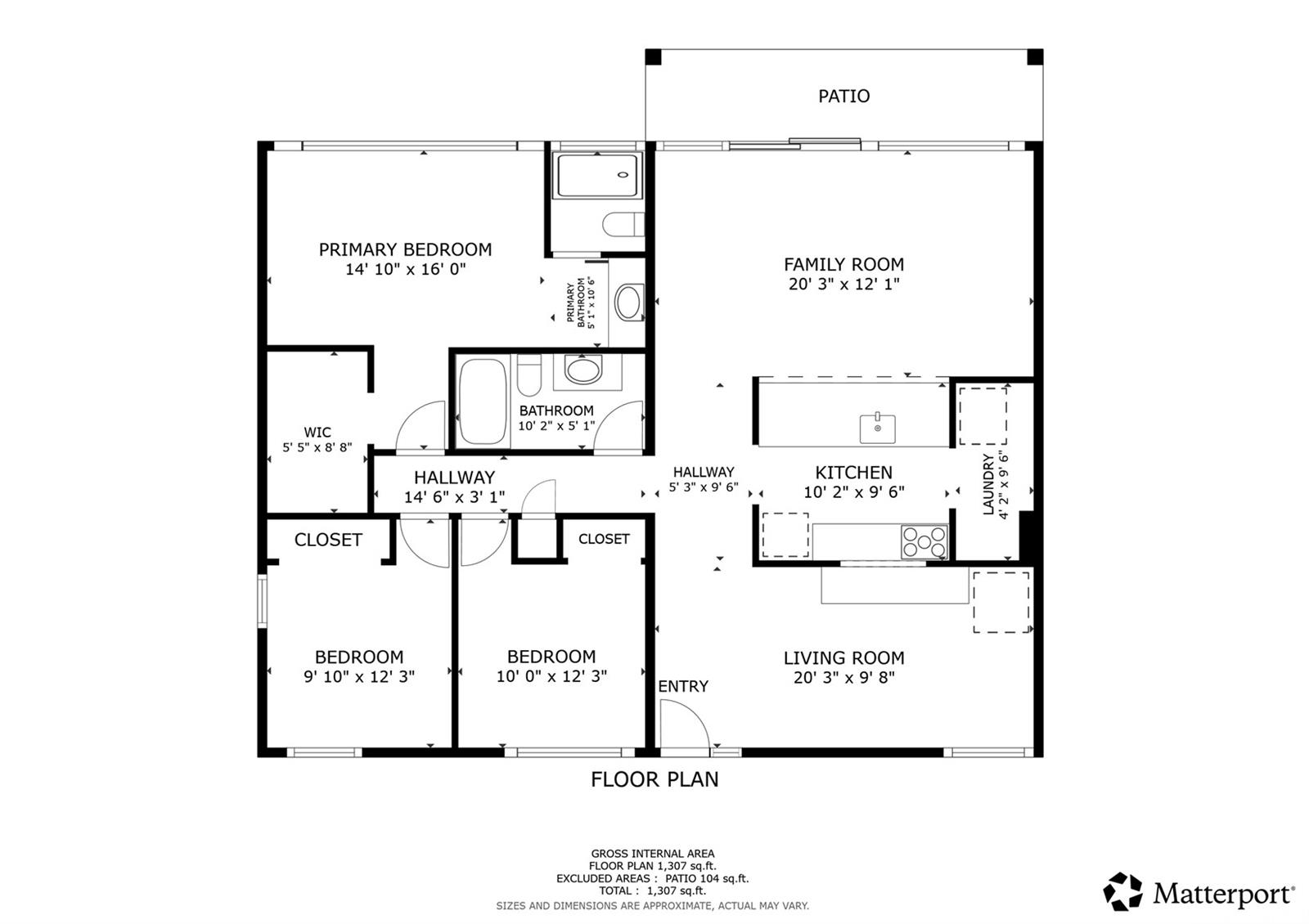
再び市場に登場!パールシティの静かなコアウカ・ループエリアに佇むブーゲンビルへようこそ。ベッドルーム3室、バスルーム2室のこのタウンハウスは、スタイリッシュな新しいタイル張りのフローリング、リフレッシュされたキッチン、そしてキッチンから続く独立したスペースを備えています。スライドドアを開けると屋根付きのベランダに出られ、屋根付き駐車スペースが1台分あります。パリ・モミ・メディカルセンターの向かいに位置し、パールハーバー・ヒッカム統合基地、キャンプ・スミス、トリプラー、そして高速道路へのアクセスも数分です。パールリッジモール、レストラン、エンターテイメント、年間を通して開催されるコミュニティイベント、そしてコミュニティプールをお楽しみください。週末のリラックスやご近所との交流に最適です。1枚以上の写真に加工が施されています。
※自動翻訳のため表現が適切でない場合がございます。
(原文)
BACK ON THE MARKET! Welcome to Bougainville, nestled in the serene Koauka Loop area in Pearl City. This 3-bedroom, 2-bathroom townhome features stylish new tile plank flooring, a refreshed kitchen, and an extra enclosed area off the kitchen. The sliding door opens to a covered lanai, and the home includes 1 covered parking stall. Located across from Pali Momi Medical Center and minutes from Joint Base Pearl Harbor-Hickam, Camp Smith, Tripler, and freeway access. Enjoy Pearlridge Mall, dining, entertainment, year-round community events, and the community pool—perfect for weekend relaxation and socializing with neighbors. One or more photos have been enhanced.


